Ten Boer: Marskramer
Nieuwbouw
Aan de Marskramer in Ten Boer gaan wij 15 appartementen bouwen. Geveke Bouw gaat de opdracht uitvoeren. Deze appartementen zijn bedoeld voor jong volwassenen van 23 tot 30 jaar. De appartementen krijgen 2 slaapkamers en een eigen balkon. We bouwen op een braak liggend terrein, die aan de Marskramer en Standwerker grenst. De bouw is in april 2024 gestart. De oplevering verwachten we rond het voorjaar 2025.
Project in het kort
- Nieuwbouw
- 15 appartementen
- Marskramer
Planning
- Dit project start in:
- De verwachte oplevering is in:
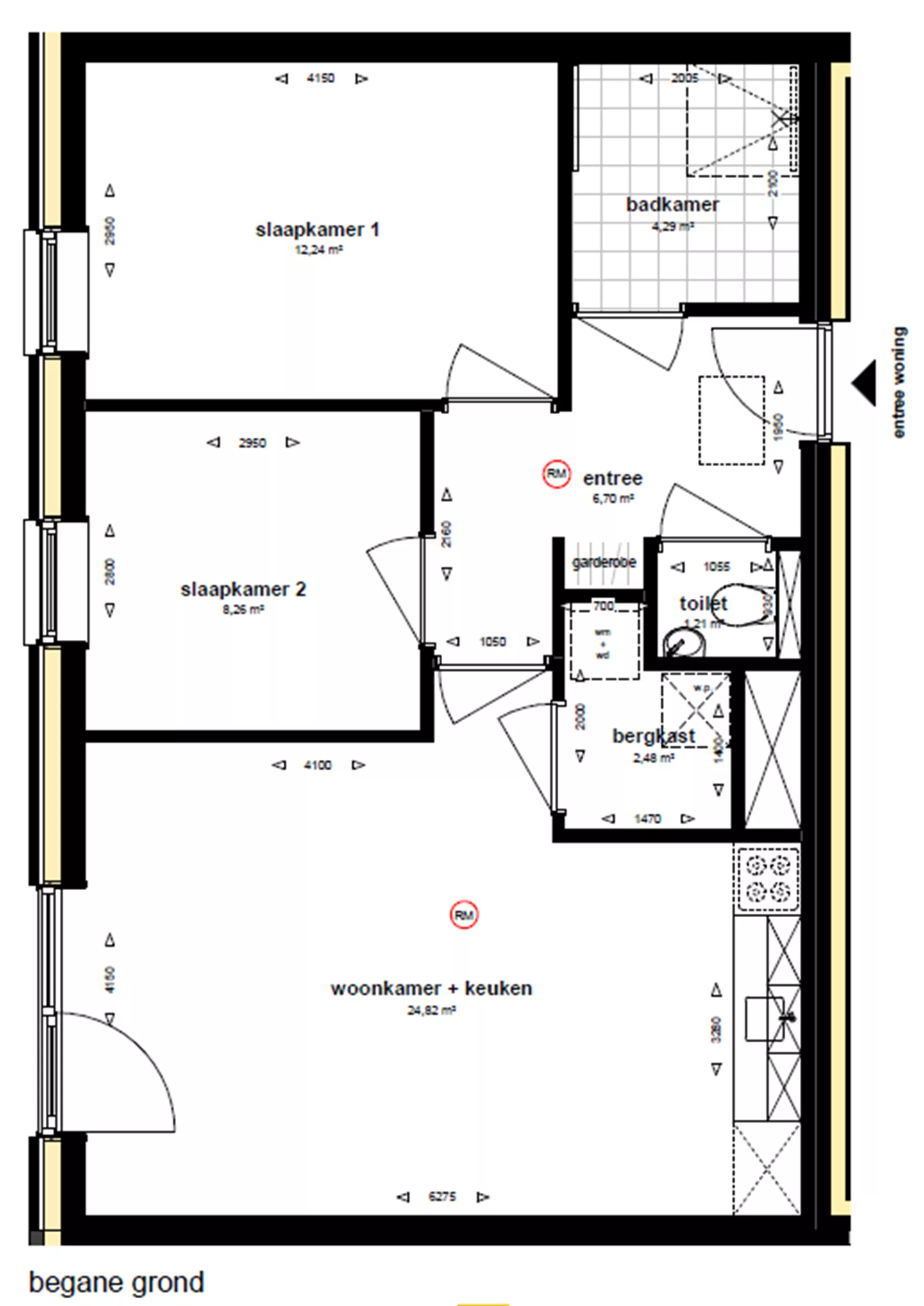
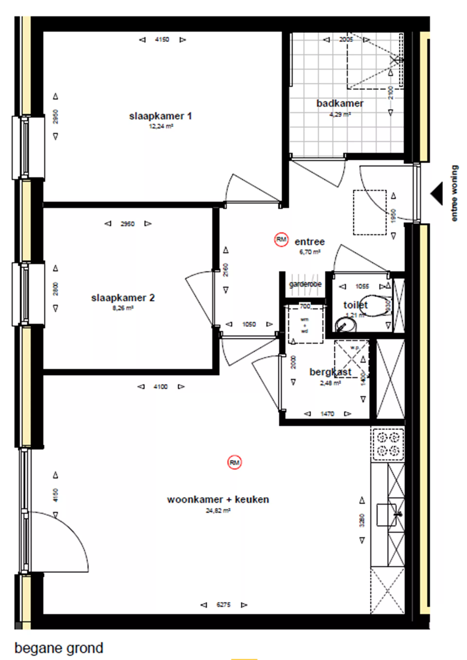
Het plan
De appartementen hebben 2 slaapkamers en een buitenruimte. Op de begane grond is dat een terrasje. Op de verdiepingen is dat een balkon. Elk appartement krijgt een eigen gecombineerde lucht-ventilatie-warmtepomp. Hierdoor hoeven er geen buiten-units op het dak te staan. Deze warmtepomp zorgt ook voor het ventilatiesysteem in de woning.
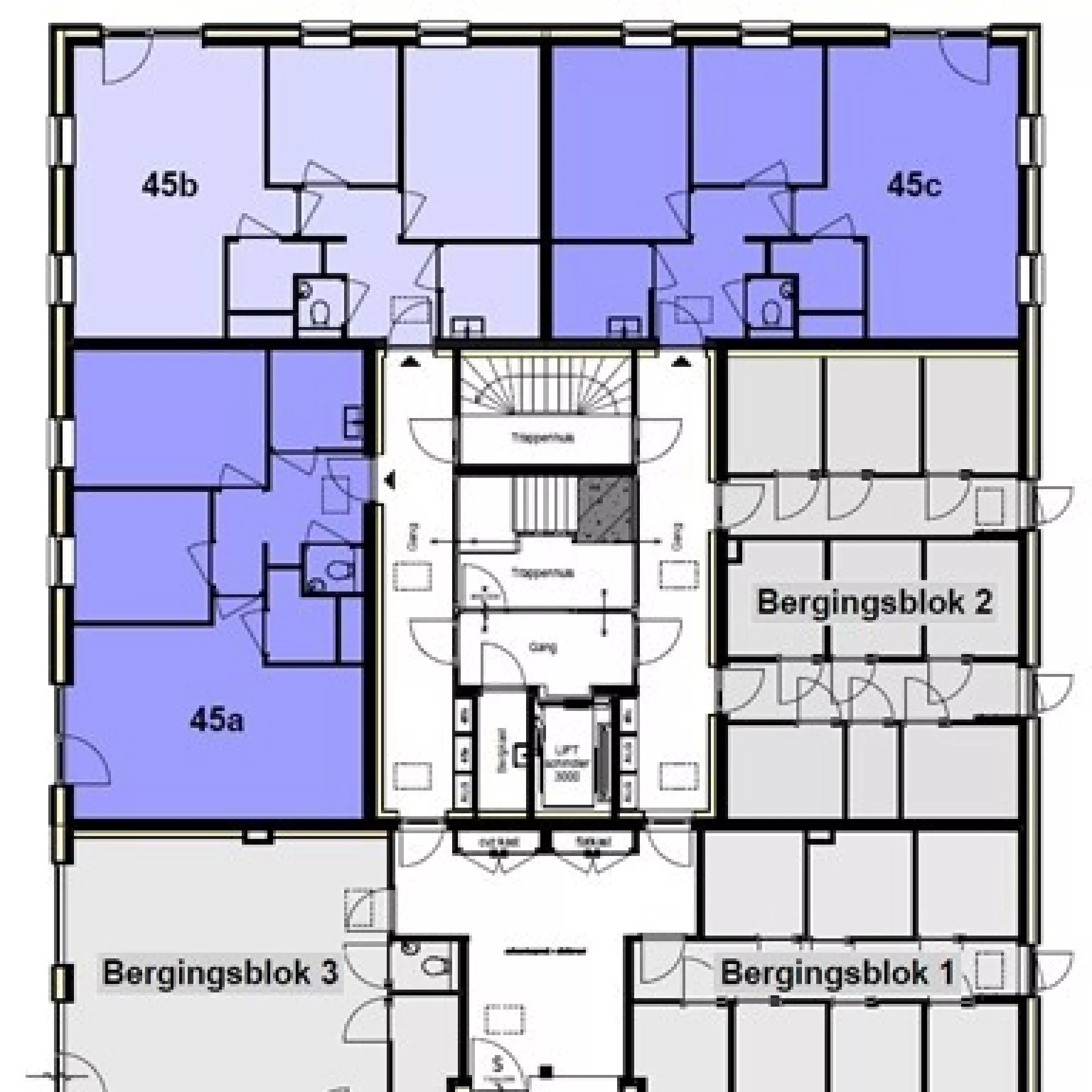
Op de begane grond heeft elk appartement een eigen berging van 5 vierkante meter. Ook is er een grote gezamenlijke berging. Hier kunnen de fietsen geplaatst worden. Om op de verdieping te komen, kan je kiezen tussen de lift of de trap.
Een leuk feitje over de gevel! Deze wordt niet gemetseld, maar we gebruiken 'click-brick'. Dat zijn bakstenen die op elkaar geklikt worden.

Belangrijke documenten
Blijf op de hoogte!
Wil je op de hoogte blijven van de voortgang van dit project? Laat dan je e-mailadres achter. Je krijgt dan een e-mail als we een nieuwe update plaatsen.





