Winsum: Munster
Nieuwbouw
Project in het kort
- Munster Winsum
- Nieuwbouw 10 eengezinswoningen
Planning
- Dit project start in:
- De verwachte oplevering is in:
Het plan
Aan de oostzijde van Winsum komt de nieuwe wijk Munster. Deze gasloze wijk ligt aan het Winsumerdiep en aan een prachtig park, het Munsterveld.
Wierden en Borgen gaat hier tien eengezinswoningen bouwen.
Over de woningen
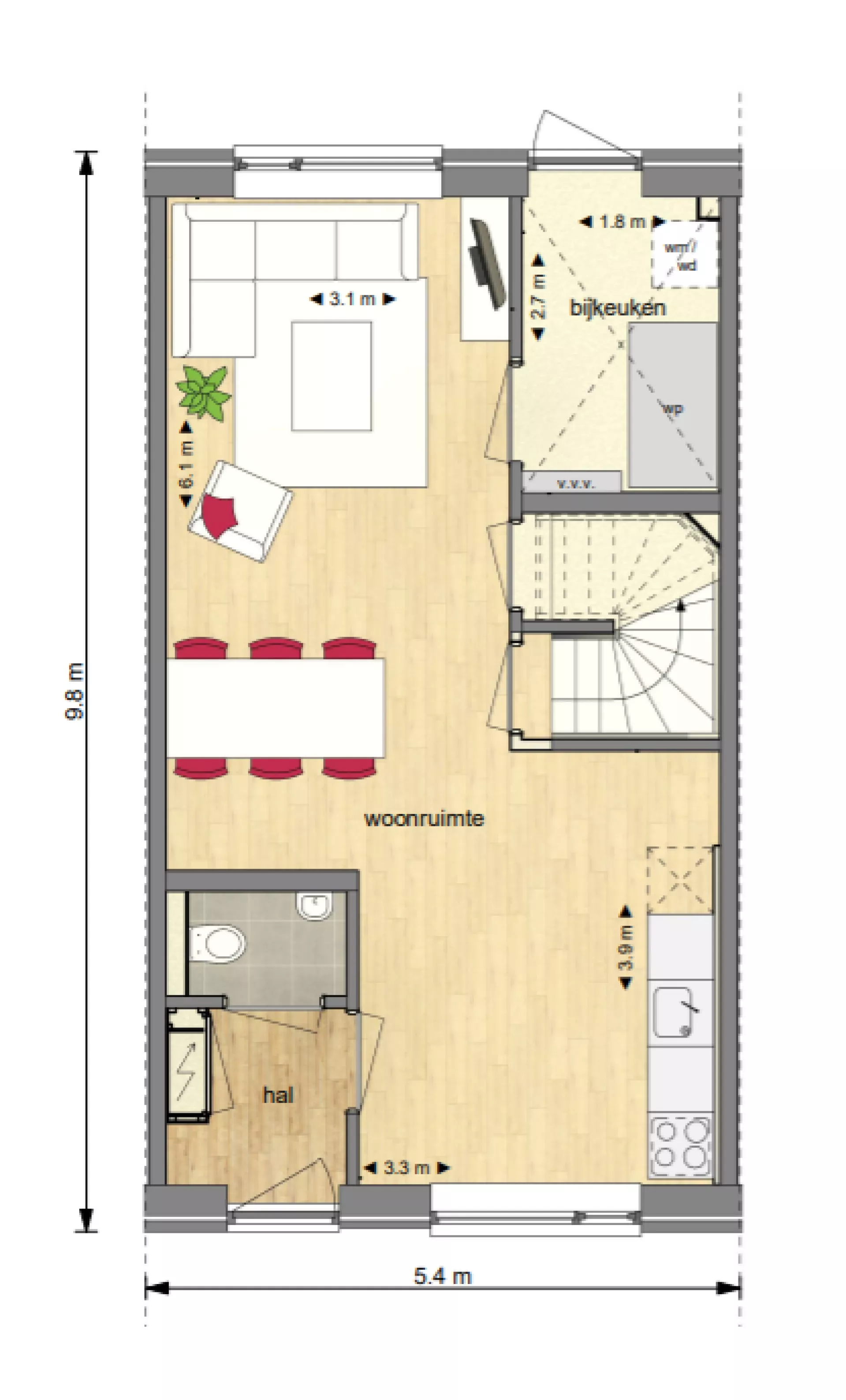
Op de begane grond zijn de woonkamer, keuken, hal en toilet.
Elke woning is standaard voorzien van een inpandige bijkeuken waarin installaties en apparaten worden geplaatst. Daarnaast is er een handige trapkast voor extra opslagruimte.
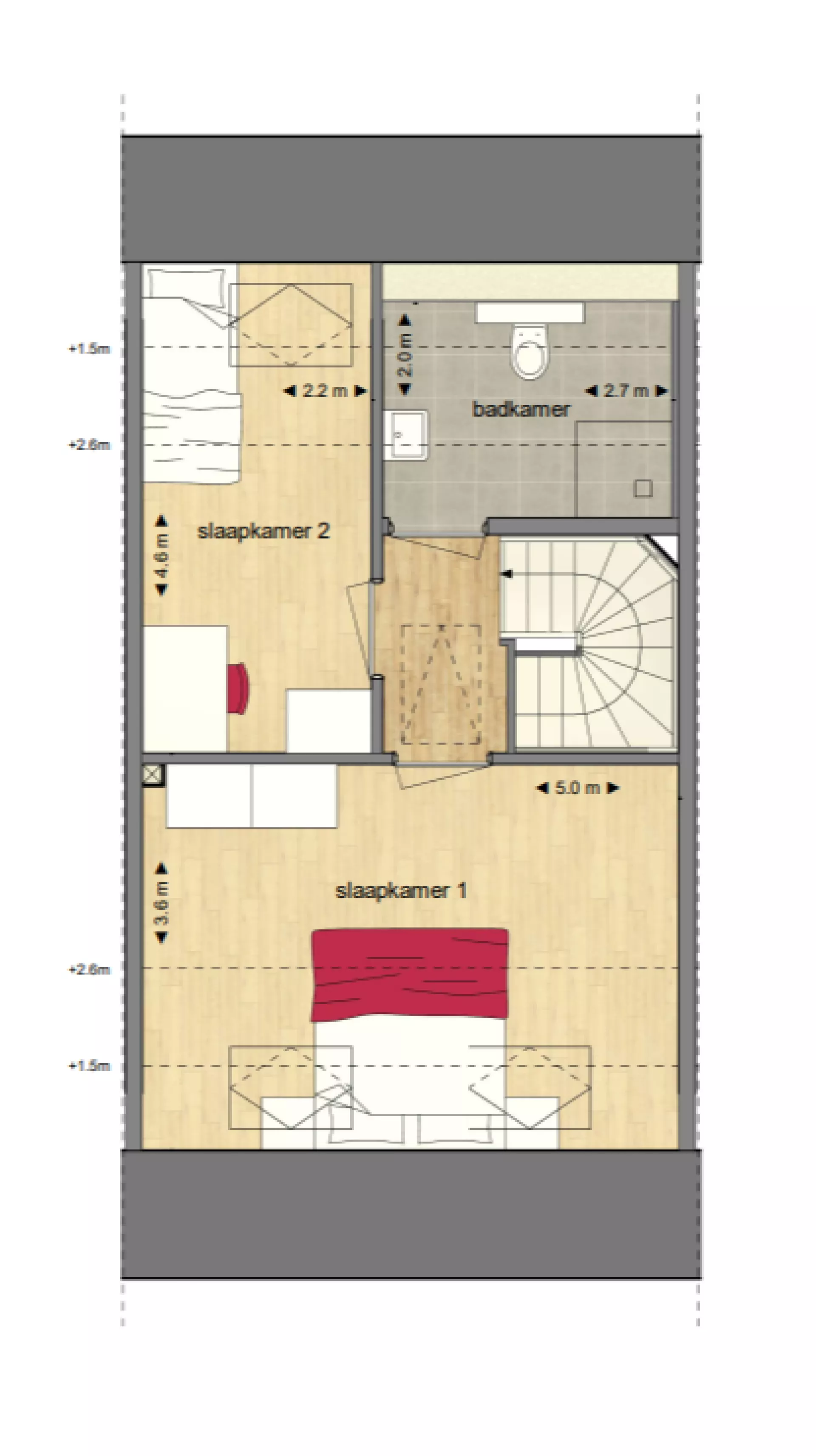
Op de eerste verdieping zijn twee slaapkamers en een ruime badkamer.
Op het dak komen 6 zonnepanelen. De woning wordt verwarmd door een luchtwater warmtepomp.

Plattegronden en impressies
Blijf op de hoogte!
Wil je op de hoogte blijven van de voortgang van dit project? Laat dan je e-mailadres achter. Je krijgt dan een e-mail als we een nieuwe update plaatsen.

















