Roodeschool: Zuster Kortestraat
Sloop en nieuwbouw
Aan de Zuster Kortestraat worden 8 nieuwe woningen gebouwd. Deze komen in plaats van de 12 bestaande appartementen die eind 2024 worden gesloopt. De bouw start in 2025 en de oplevering staat gepland voor 2026.
Project in het kort
- Zuster Kortestraat
- Sloop 12 appartementen
- Nieuwbouw 8 woningen
Planning
- Dit project start in:
- Het is nog niet bekend wanneer dit project start
- De verwachte oplevering is in:
- De verwachte opleveringsdatum is nog niet bekend.
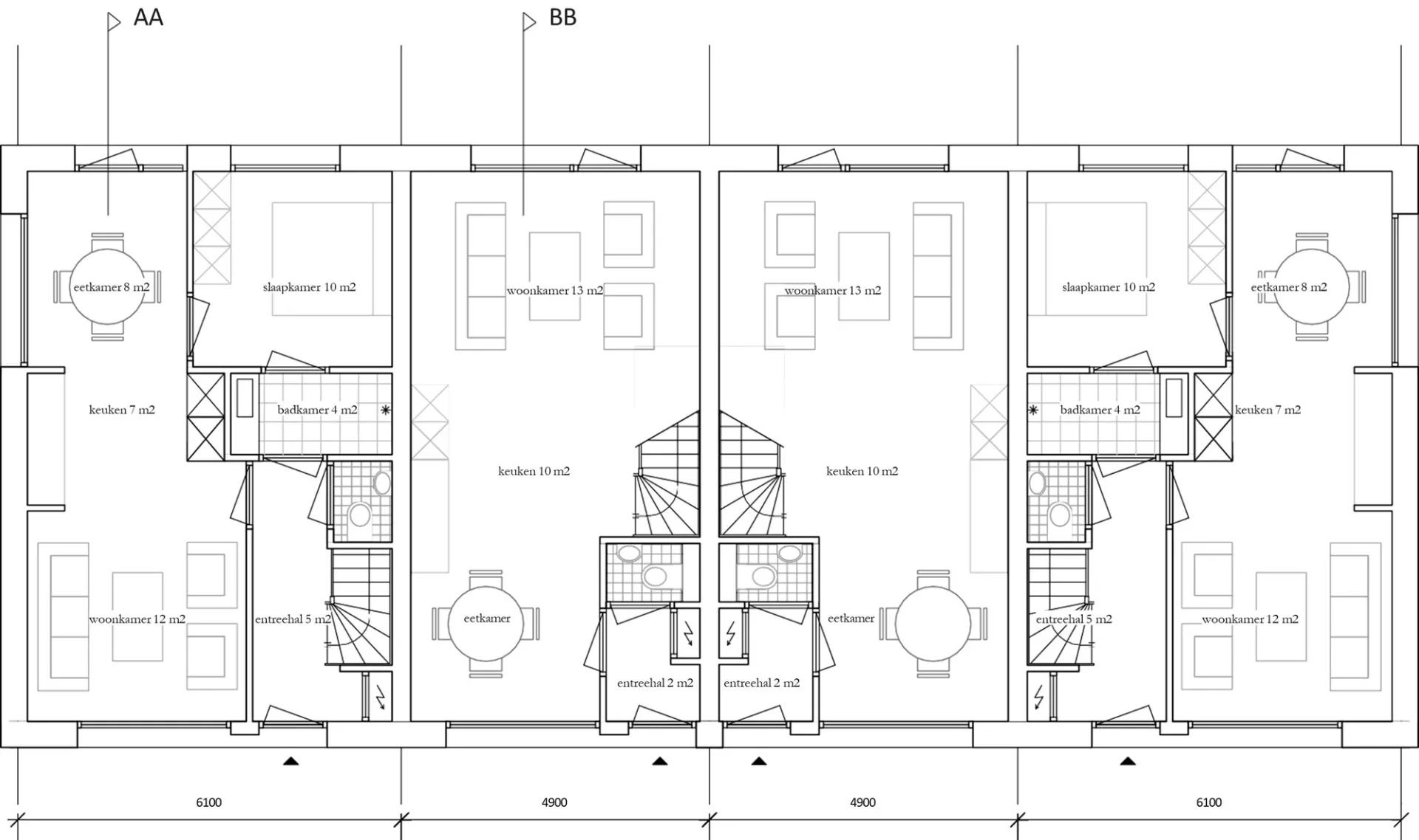
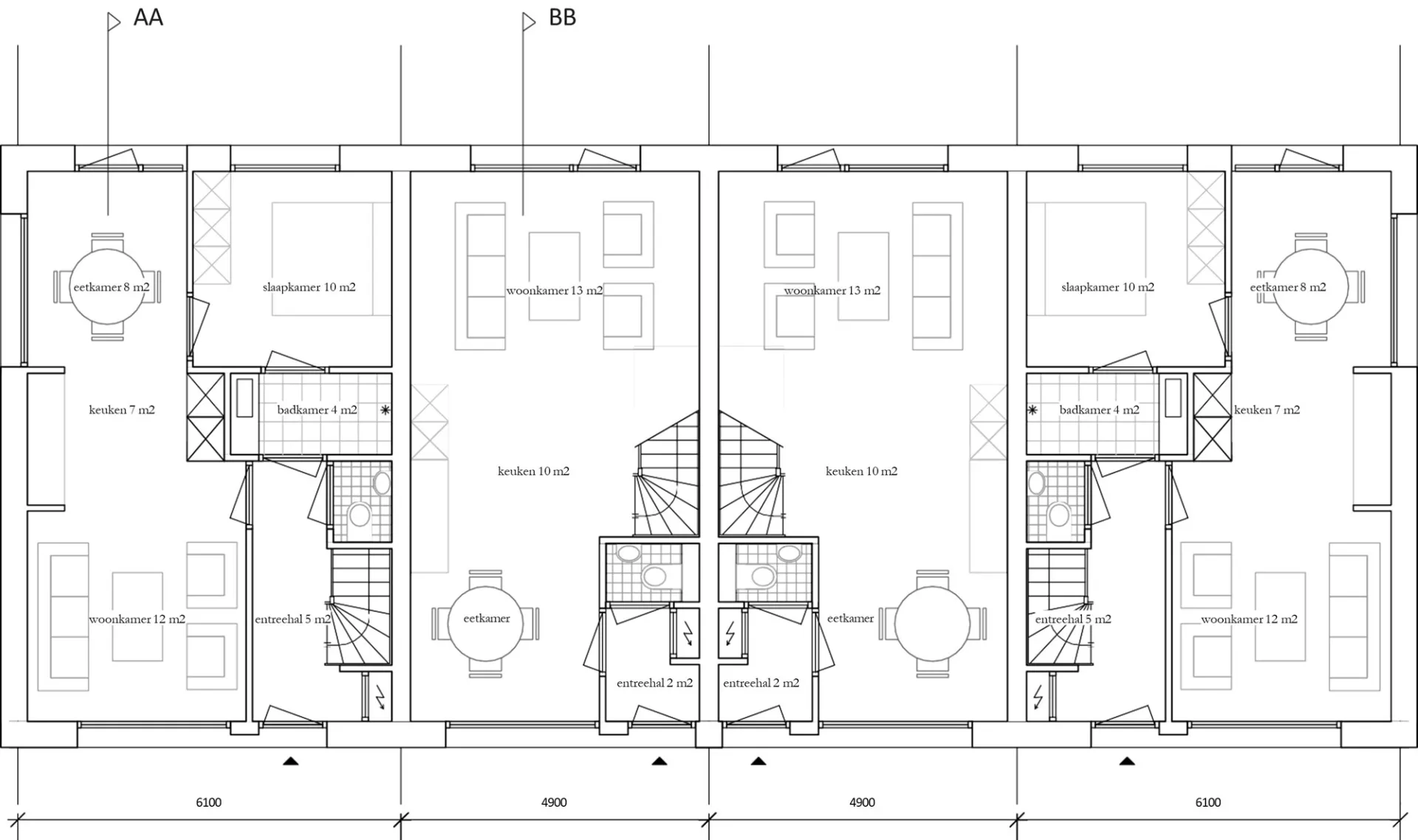
Het plan
Het ontwerp is geïnspireerd op het woonhuis met bakkerij en winkel aan de M.H. Trompstraat 13. Een lokaal voorbeeld van timmermans- architectuur, waar een kubustisch bouwdeel en een bouwdeel met kap bij elkaar komen.
De hoekwoningen zijn geschikt voor senioren en hebben op de begane grond een slaapkamer en een badkamer. De tussenwoningen hebben de badkamer en slaapkamers op de 1e verdieping. Dit maakt dat deze woningen geschikt zijn voor jonge gezinnen.
Blijf op de hoogte!
Wil je op de hoogte blijven van de voortgang van dit project? Laat dan je e-mailadres achter. Je krijgt dan een e-mail als we een nieuwe update plaatsen.







